|
|
Descriptions:
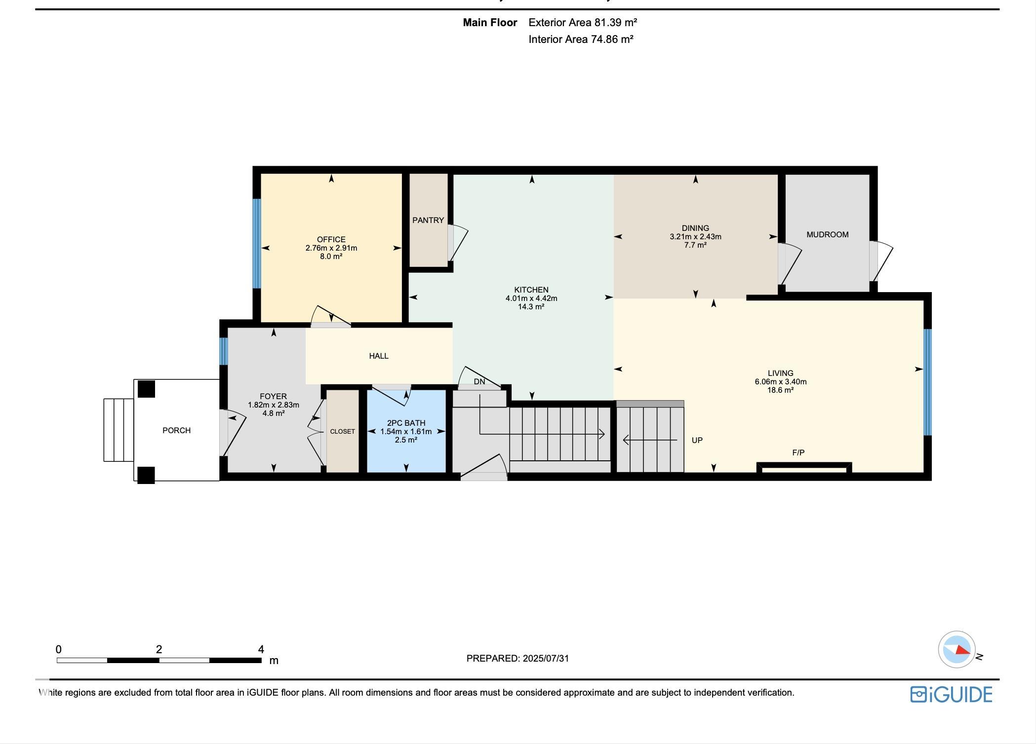
Discover this stunning brand-new 2-storey home in Morinville offering over 1,700 sq. ft. of thoughtfully designed living space. The main floor boasts a cozy living room with electric fireplace, spacious dining area, and kitchen with modern cabinetry & generous storage. A private den, 2-piece bath, storage, and mudroom add convenience and function. Upstairs, the primary retreat features a spa-inspired 4-piece ensuite and walk-in closet. Two additional bedrooms, a 4-piece bath, and a well-appointed laundry room complete the upper level. A rear double concrete parking pad offers plenty of space for future garage potential. With quality finishes throughout, this home blends comfort, style, and practicality--ideal for modern living. Home is at the drywall stage. Color & material selection may still be possible-Act Fast!
|
|
|
| Includes: |
|
Builder Appliance Credit |
|
|
|
|
|
| Site Influences: |
| Back Lane, Flat Site |
|
| Legal Description: |
| ACCESS Legal Description |
|
| Location & Listing Info: |
| Neighbourhood: |
Morinville
|
|
| Lot Shape: |
Rectangular |
|
|
|
|
|
| Property Info: |
|
| Property Type: |
Detached Single Family |
| Home Style: |
2 Storey |
| Year Built: |
2025 |
| Total Floor Area: |
1,734 sq. ft. |
| Front Exposure: |
North
|
|
|
|
|
|
| Exterior: |
|
| Exterior: |
Back Lane, Flat Site |
| Front Exposure: |
North |
| Roof: |
Asphalt Shingles |
|
|
|
|
|
|
|
|
|
|
| Rooms: |
|
| Total Bedrooms: |
3
(Bedrooms Above: 3)
|
| Bathrooms: |
Full: 2
/ Half: 1
|
| Rooms Above: |
7 |
|
|
|
|
|
| Additional Info: |
|
| Heating: |
Y |
| Basement: |
Full, Unfinished |
| Basement Type: |
Full, Unfinished |
| Floor Finish: |
Vinyl Plank |
| Parking: |
Parking Pad Cement/Paved |
|
|
|
|
|
|
|
|
|
|
|
|
|
|
|
 |
Contact Mark Friesen -
201, 10114-156 st NW, Edmonton, Alberta, T5P 2P9
|
|
|
|
|
|
|
|
|
|
Copyright 2025 by the REALTORS® Association of Edmonton. All Rights Reserved. Data is deemed reliable but is not guaranteed accurate by the REALTORS® Association of Edmonton. Data was last updated December 17, 2025, 1:58 pm. |
|
|
|
|
The data included on this website is deemed to be reliable, but is not guaranteed to be accurate by the REALTORS® Association of Edmonton.
MLS®, Multiple Listing Service®, and the associated logos are all registered certification marks owned by CREA and are used to identify real estate services provided by brokers and salespersons who are members of CREA. The trademarks REALTOR®, REALTORS® and the REALTOR® logo are controlled by The Canadian Real Estate Association (CREA) and identify real estate professionals who are members of CREA. Used under license.
|